台湾の方を中心に外国籍の方向けの投資物件の取扱い及び管理を専門的に行っております。
東京都都心部で一棟ビル・事務所店舗・マンションをお探しでしたらお気軽にご利用ください。
賃貸マンション
賃貸事務所店舗
売買物件
会社概要
お問い合わせ
ホーム
賃貸事務所店舗
港区
FORAビル 5階
FORAビル 5階
物件名
FORAビル 5階
用途
事務所
所在地
東京都港区新橋5-10-8
交通
JR線「新橋駅」徒歩6分
銀座線「新橋駅」徒歩6分
三田線「御成門駅」徒歩8分
賃料
484,000円(税込)
共益費
48,400円(税込)
礼金
1ヶ月
保証金
4ヶ月
償却
1ヶ月
更新料
新賃料1ヶ月
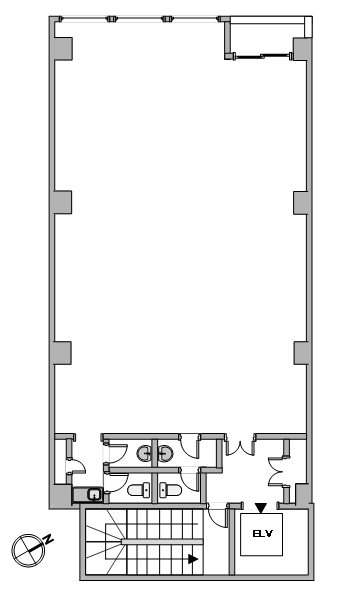
面積
108.53㎡
規模構造
鉄骨造
築年
昭和60年10月
現況
空
入居
即時
備考
エレベーター、エアコン、給湯室、洗面台、トイレ男女別専用
2025.09.29
2026.01.19
メニュー
賃貸マンション
賃貸事務所店舗
売買物件
会社概要
お問い合わせ
検索
ホーム
シェア
X
Mastodon
Bluesky
Misskey
Facebook
はてブ
Pocket
LINE
Pinterest
LinkedIn
コピー
コメント
トップ
サイドバー
タイトルとURLをコピーしました